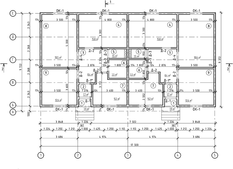
Фундамент — деревянный ростверк на ж/б сваях
Несущие стены — SIP панель (174мм)
Покрытие — битумная черепица
Наружная отделка — сайдинг
+7 (914) 231-56-67
Республика Саха (Якутия)
село Техтюр
Фундамент — деревянный ростверк на ж/б сваях
Несущие стены — SIP панель (174мм)
Покрытие — битумная черепица
Наружная отделка — сайдинг




