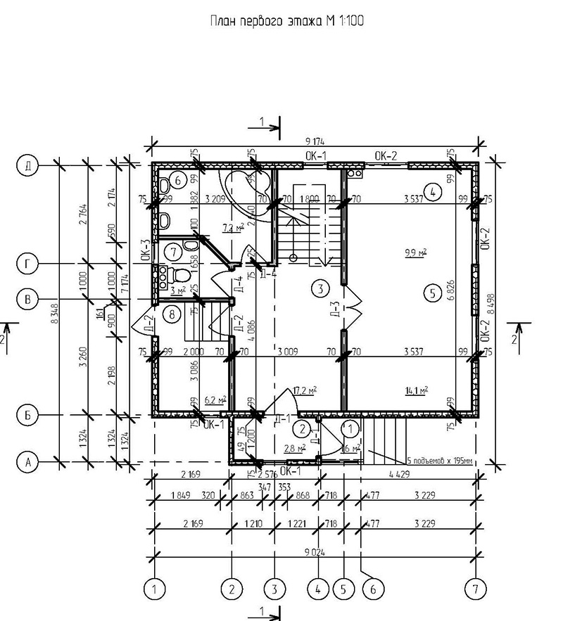
Фундамент — ленточный
Несущие стены — SIP панель (174мм)
Покрытие — мягкая черепица
Наружная отделка —металический сайдинг
+7 (914) 231-56-67
Республика Саха (Якутия)
село Техтюр
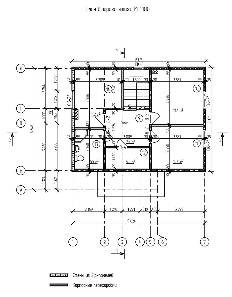
Фундамент — ленточный
Несущие стены — SIP панель (174мм)
Покрытие — мягкая черепица
Наружная отделка —металический сайдинг





