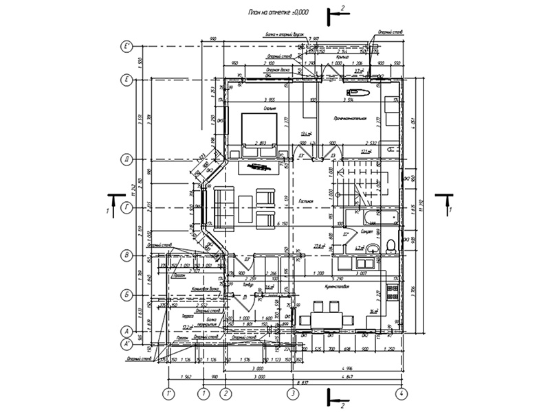
Фундамент — монолитная ж/б плита
Несущие стены — SIP панель (174мм)
Покрытие — металочерепица
Наружная отделка — штукатурка, облицовочная плитка, природный камень
+7 (914) 231-56-67
Республика Саха (Якутия)
село Техтюр
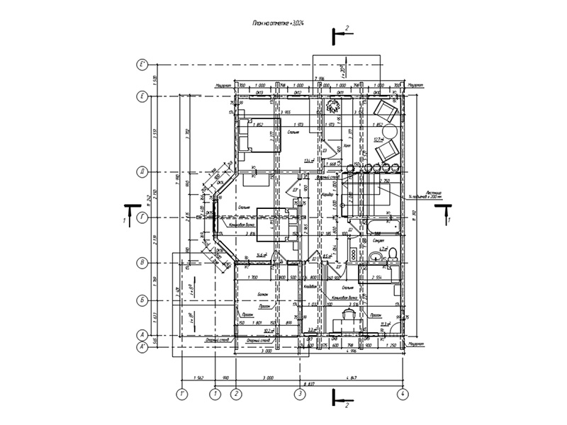
Фундамент — монолитная ж/б плита
Несущие стены — SIP панель (174мм)
Покрытие — металочерепица
Наружная отделка — штукатурка, облицовочная плитка, природный камень





